



























































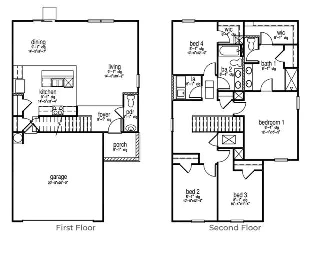
Welcome to the Aisle in Ferry Grove, a 2-stopy floorplan with a 2-car garage. Featuring an open-concept first floor, the spacious kitchen boasts sleek quartz countertops (though granite are pictured above), a large floating island, and vinyl flooring. With 4 bedrooms, 2.5 bathrooms, including a convenient first-floor powder room, this home blends modern luxury with functionality. The upstairs primary suite includes a walk-in closet and spacious en-suite bath. The Aisle is a comfortable, functional floorplan that is perfect for many stages of life! All our homes include D.R. Horton's Home is Connected package, an industry leading suite of smart home products that keeps homeowners connected with the people and place they value the most. The technology allows homeowners to monitor and control their home from the couch or across the globe. Ferry Grove offers ...
Stay informed with Livabl updates on new community details and available inventory.