







































































































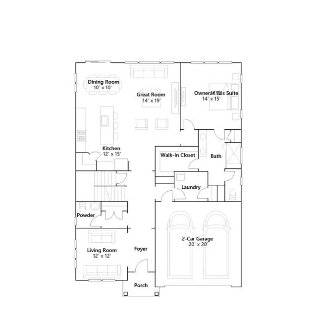
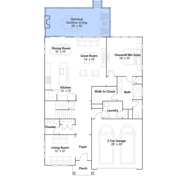
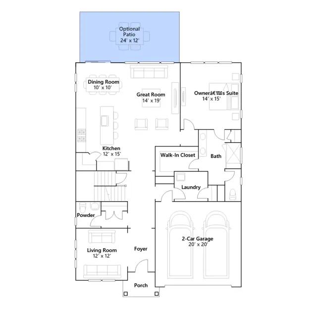
This new two-story home showcases a family-friendly design. The first floor features an open-plan layout among the Great Room, dining room and kitchen. A lovely living room is located off the foyer. The owners suite is situated at the back of the first floor for added privacy. The second floor hosts a loft thats an ideal space for entertaining and two secondary bedrooms, which both feature walk-in closets.
Stay informed with Livabl updates on new community details and available inventory.