




















































































































Get additional information including price lists and floor plans.
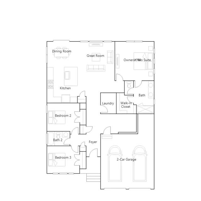
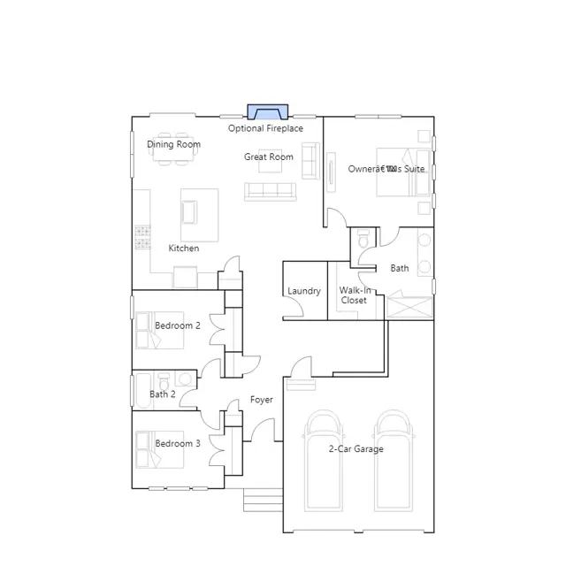
This single-story home features an open space family room, kitchen and breakfast room with two separate entrances that lead out to the covered porch. Near the foyer are two comfortable bedrooms, while the airy owners suite is tucked away on the other side. Rounding out the home is a versatile two-car garage to provide plenty of storage space.
Stay informed with Livabl updates on new community details and available inventory.