hero-image-0
hero-image-1
hero-image-2
hero-image-3

147 Larch Crescent

By

Bedrock Homes

   |   

Woodbend

Woodbend
Sold
Sold
3
2
1
1,989
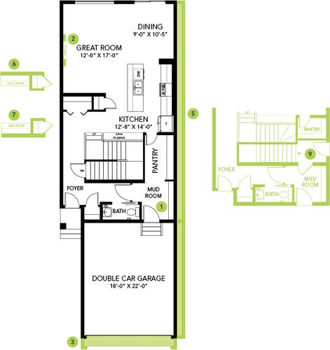
147 Larch Crescent details
147 Larch Crescent is now sold.
Check out available nearby homes below.

Interested? Receive updates

Stay informed with Livabl updates on new community details and available inventory.