hero-image-0

483 Roberts Crescent

By

Bedrock Homes

   |   

Robinson

Robinson
Sold
Sold
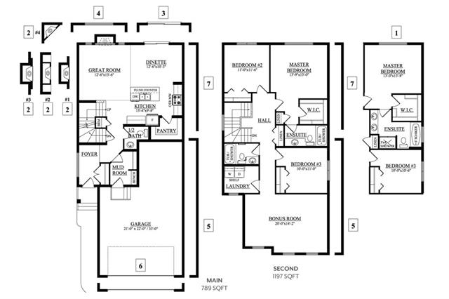
3
2
1
2,055
483 Roberts Crescent details
unit-banner-image
unit-banner-image
unit-banner-image
483 Roberts Crescent is now sold.
Check out available nearby homes below.