hero-image-0

160 Reed Place

By

Bedrock Homes

   |   

Robinson

Robinson
Sold
Sold
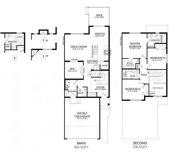
3
2
1
1,555
160 Reed Place details
unit-banner-image
unit-banner-image
unit-banner-image
160 Reed Place is now sold.
Check out available nearby homes below.