

































Get additional information including price lists and floor plans.
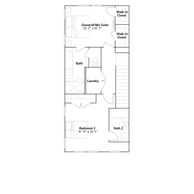
Upon entry into this new three-story townhome is a convenient two-car garage for storage space. On the second floor is the main living area, featuring an expansive Great Room with direct access to a modern kitchen and dining area. Residing on the top level are two bedroom suites situated at opposite ends of the home to grant privacy, both of which feature attached bathrooms for enhanced livability.
Stay informed with Livabl updates on new community details and available inventory.