hero-image-0
hero-image-1
hero-image-2

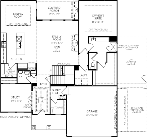
ATWELL Plan

Shaker Run Fairways
Sold
Sold
3
2
1
From 2,605
ATWELL Plan details
ATWELL Plan is now sold.
Check out available nearby plans below.