
















Get additional information including price lists and floor plans.

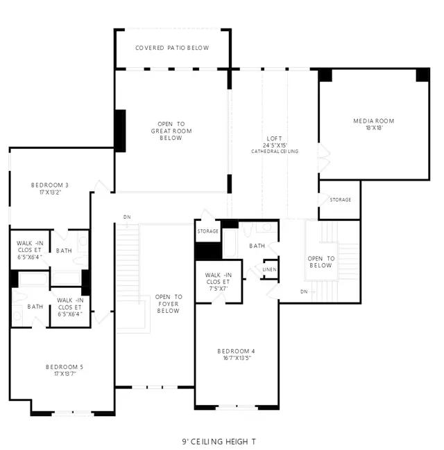
The Thornhill defines luxury with a marvelous two-story foyer that flows past a formal dining room, revealing the gorgeous two-story great room that presents beautiful views of the desirable large covered patio. Adjacent to an intimate casual dining area, the kitchen is expertly designed with plenty of counter and cabinet space, a roomy pantry, as well as a large central island with accompanying breakfast bar. A palatial walk-in closet highlights the secluded primary bedroom suite that features a serene primary bath with dual vanities, large soaking tub, luxe shower, linen storage, and private water closet. Secondary bedrooms, two with a private bath and one with a shared hall bath feature sizable closets and are adjacent to an expansive loft and media room. An additional bedroom suite is conveniently located off the kitchen, with other features including a sizab...
Stay informed with Livabl updates on new community details and available inventory.