hero-image-0
hero-image-1

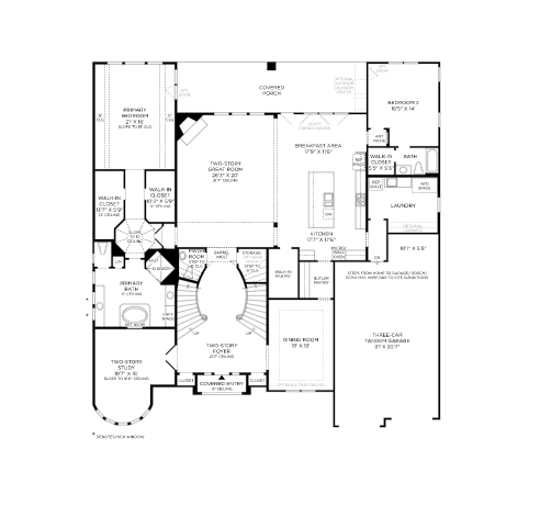
Sandhaven Plan

Travisso - Florence Collection
Sold
Sold
4
4
1
From 4,964
Sandhaven Plan details
Sandhaven Plan is now sold.
Check out available nearby plans below.

Interested? Receive updates

Stay informed with Livabl updates on new community details and available inventory.