hero-image-0
hero-image-1

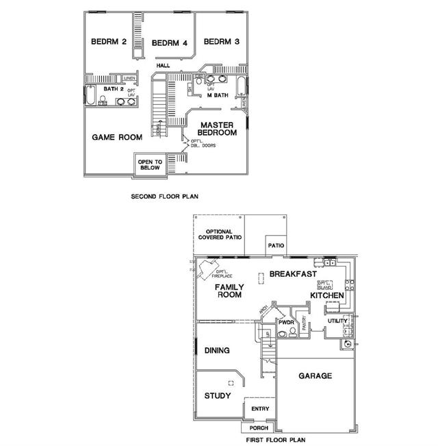
505 Longhorn Cavern Road

Northside Meadow
Sold
Sold
4
2
1
2,588
505 Longhorn Cavern Road details
unit-banner-image
unit-banner-image
unit-banner-image
505 Longhorn Cavern Road is now sold.
Check out available nearby homes below.