

















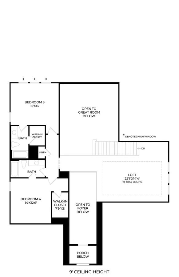
The Live Oak s spacious and modern design is a wonderful combination of gathering spaces and restorative retreats. The foyer reveals breathtaking views to the magnificent great room and the spacious covered patio beyond. Adjacent, the well-designed kitchen is complete with a sizable casual dining area, a large center island with breakfast bar, plenty of counter and cabinet space, and an ample walk-in pantry. The private primary bedroom suite is defined by an elegant tray ceiling, a generous walk-in closet, and a spa-like primary bath with dual vanities, a serene soaking tub, a luxe shower with seat, linen storage, and a private water closet. Secondary bedrooms, one with a shared hall bath, the other with a private bath, feature walk-in closets. Further highlights include a desirable first-floor bedroom suite with a walk-in closet and a private bath, a sizable lof...
Stay informed with Livabl updates on new community details and available inventory.