












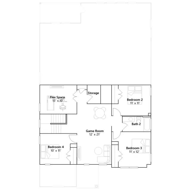
This two-story residence has a Next Gen Lite home design, which features a front room that is ideal for a home office, learning area or gym. Down the hall is the open-concept living room with a rear covered patio, while the owners suite is tucked into the back with a full bathroom and walk in closet. Upstairs are three additional bedrooms, as well as a game room and flex room.