



Get additional information including price lists and floor plans.
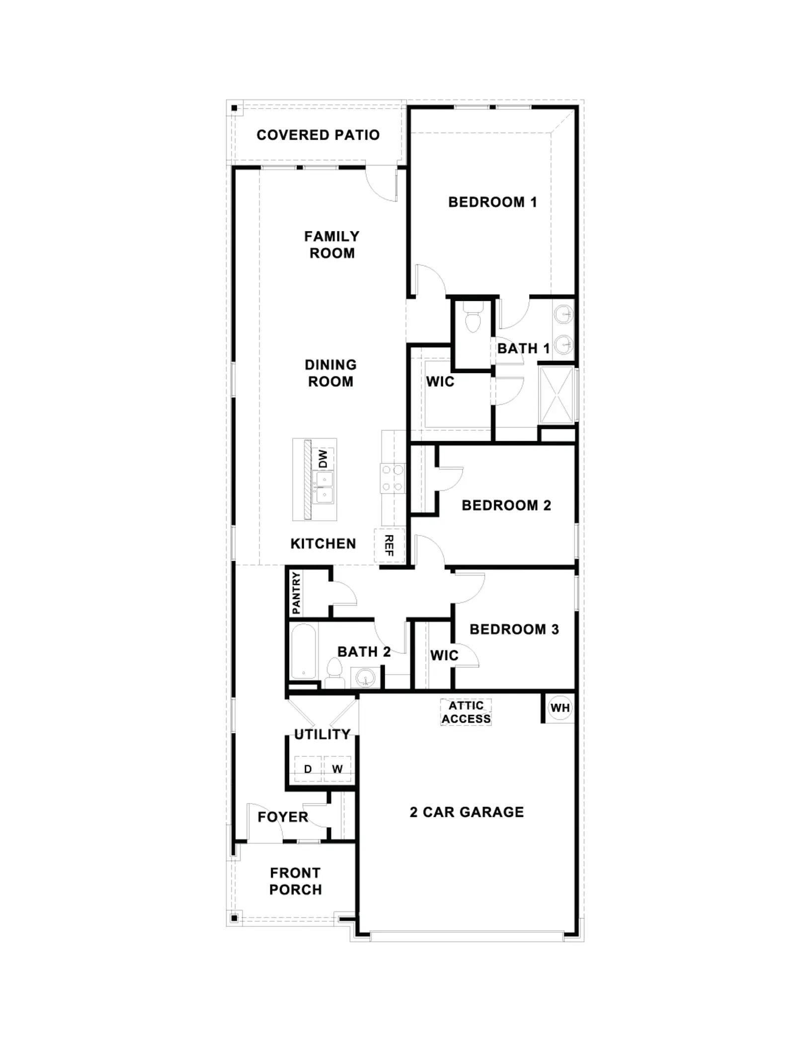
The Caroline floorplan is a premier choice for those seeking new construction homes in Leander, TX, offering a perfect blend of modern efficiency and Hill Country charm. As a standout single-story layout at Bar W Ranch, this 1,489-square-foot home features three spacious bedrooms and two bathrooms designed for seamless living. The heart of the home is an expansive open-concept area where a gourmet kitchen with stainless steel appliances and a central island overlooks the bright dining and living spaces. This configuration is ideal for entertaining or quiet family evenings in one of the most sought-after communities near Austin. Privacy is a hallmark of this design, with the secluded primary suite situated away from the secondary bedrooms. Owners can enjoy a private retreat featuring a walk-in shower and a generous walk-in closet. Beyond the interior, resident...
Stay informed with Livabl updates on new community details and available inventory.