



Get additional information including price lists and floor plans.
Images coming soon
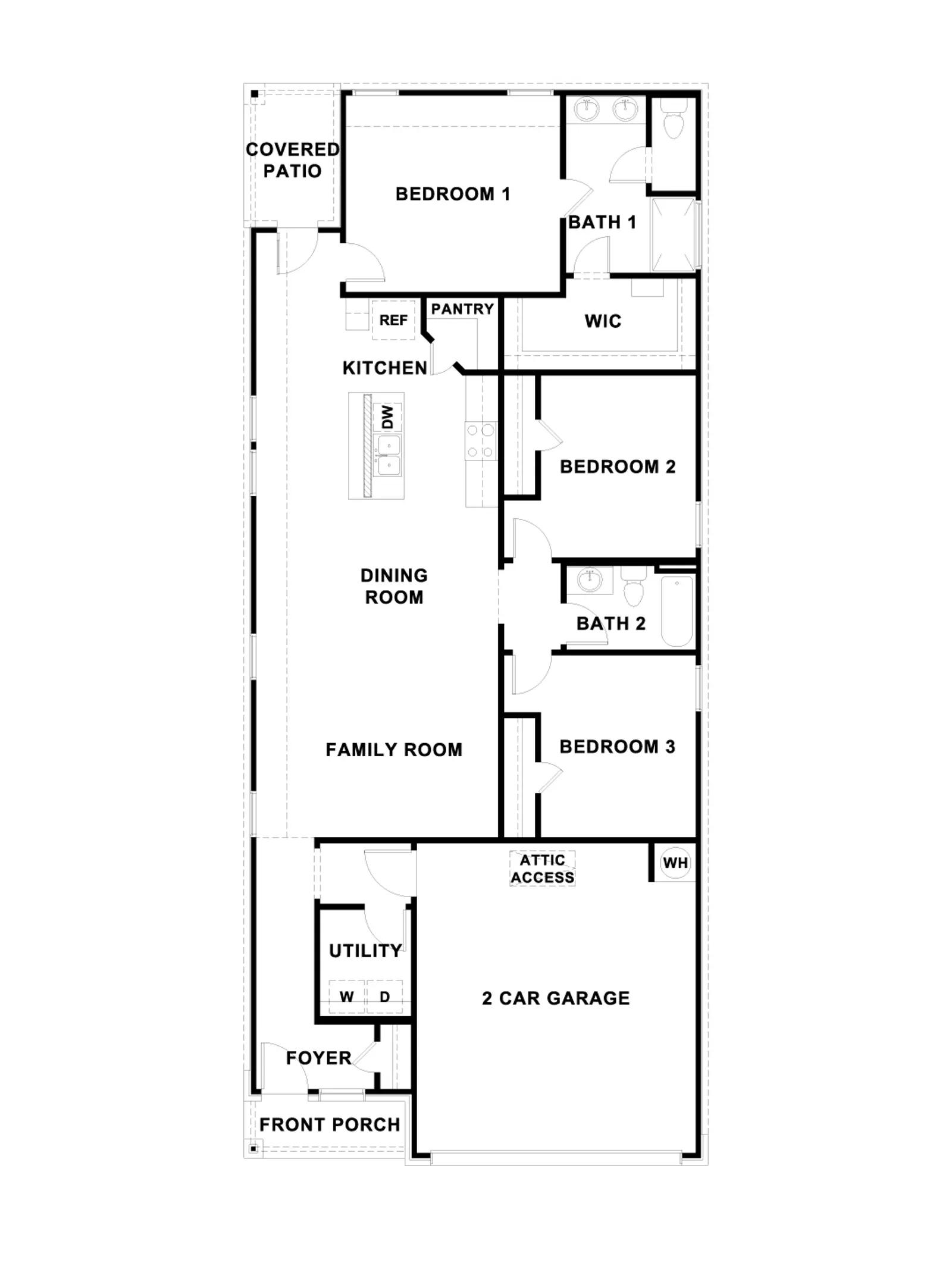
The Diana floorplan is a premier choice for homebuyers seeking modern elegance and functional design within the highly desirable Bar W Ranch community in Leander, TX. This thoughtfully crafted single-story home offers approximately 1,535 square feet of living space, featuring three spacious bedrooms, two bathrooms, and a two-car garage. The journey begins at the inviting covered front porch, leading through a long, elegant foyer into the heart of the home. The expansive open-concept living area seamlessly integrates the gourmet kitchen, dining room, and family room, creating a bright and airy atmosphere perfect for both daily life and entertaining guests. The kitchen stands out with a large central island and a generous walk-in pantry, providing ample storage and prep space for any home chef. Designed for maximum privacy, the secluded primary suite is tucked a...
Stay informed with Livabl updates on new community details and available inventory.