hero-image-0

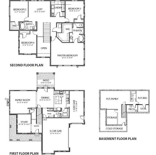
Berkley Plan

Evergreen Farms
Sold
Sold
4
3
From 4,454
unit-banner-imageunit-banner-imageunit-banner-image
Berkley Plan details
Berkley Plan is now sold.
Check out available nearby plans below.