












































































Get additional information including price lists and floor plans.
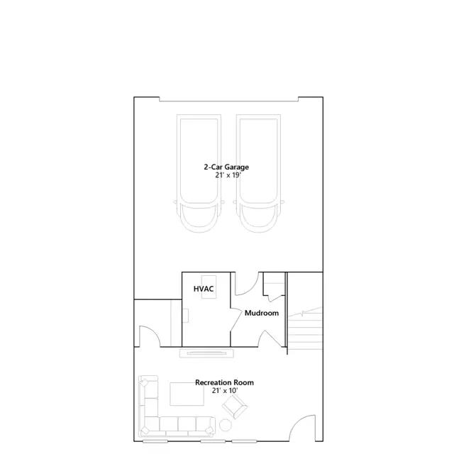
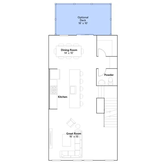
Upon entry into this new three-story townhome is a sprawling recreation room well-suited to fit an array of versatile needs, while at the back is a convenient mudroom and connecting two-car garage. The second floor presents the main living and dining spaces with a spacious kitchen at the center of the open-concept layout. Ideally located on the top floor are two secondary bedrooms and a tranquil owners suite to provide maximum privacy.
Stay informed with Livabl updates on new community details and available inventory.