

































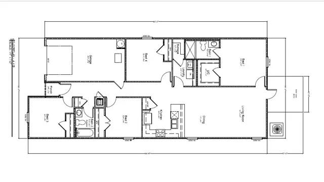
Welcome to the Bowen Plan, at Heritage Plantation, our new home community in Laurel Hill, Florida. Just over 1,500 square feet, this beautiful single- story home offers 4-bedrooms with 2-bathrooms, a 1-car garage, and a seamless open layout with charming features that are sure to make you feel right at home. As you enter the home, you are met with the first, second and third additional bedrooms as well as a full guest bathroom. Directly off of the entry you will also find access to the one car garage. Further into the home is an inviting open layout of the living area and beautiful kitchen. The kitchen includes Formica countertops, stainless steel appliances, and stylish shaker cabinetry. The living and dining area are integrated perfectly to complete this relaxing atmosphere. The primary bedroom is tucked away off the living area and includes an ensuite bath a...
Stay informed with Livabl updates on new community details and available inventory.