


















































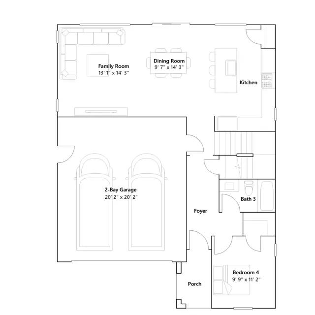
This new two-story home is host to an inviting open-concept layout on the first floor that blends the kitchen, living and dining areas for seamless entertaining and multitasking. A convenient bedroom is located near the front of the home. On the second floor, three additional bedrooms surround a versatile loft, including the lavish owners suite with a spa-inspired bathroom and walk-in closet.
Stay informed with Livabl updates on new community details and available inventory.