























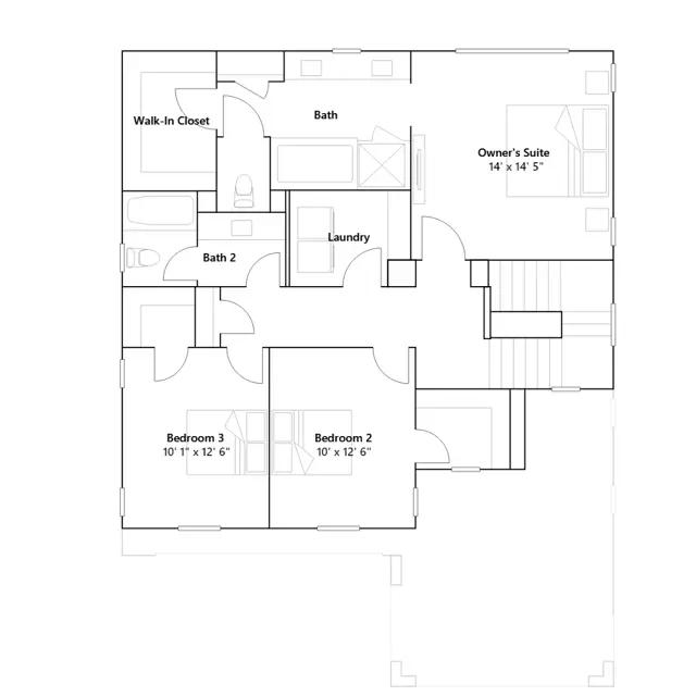
This new two-story home offers a spacious layout with ample room to live and grow. On the first floor is an inviting open-concept floorplan that blends the kitchen, living and dining areas. A secluded study is located near the front of the home. All three bedrooms are located on the second level, including the luxurious owners suite with a spa-inspired bathroom and walk-in closet.
Stay informed with Livabl updates on new community details and available inventory.