






























Get additional information including price lists and floor plans.
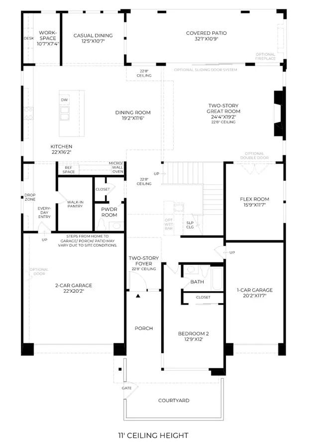
A beautiful private courtyard and airy two-story foyer reveal the Summerhill's soaring great room and expansive covered patio beyond. The well-designed kitchen is complete with a bright casual dining area, a large center island with breakfast bar, plenty of counter and cabinet space, and a generous walk-in pantry. The elegant primary bedroom suite is highlighted by a relaxing primary retreat, an ample walk-in closet, and a charming primary bath with dual vanities, a soaking tub, a luxe shower, linen storage, and a private water closet. Secondary bedrooms feature walk-in closets and private baths. Additional highlights include a versatile first-floor bedroom with a private bath, a spacious flex room, a convenient workspace, easily accessible laundry, a powder room, an everyday entry with drop zone, and plenty of additional storage.
Stay informed with Livabl updates on new community details and available inventory.