

















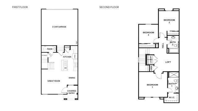
Discover approximately 1,410 square feet of living space in the 1410 Plan. This two-story home features 3 bedrooms and 2.5 bathrooms. The main level of the home features a large, open kitchen and great room. Featuring Americas Smart Home, D.R. Horton keeps you close to the people and places you value most. Simplify your life with a dream home that features hands-free communication, remote keyless entry, video doorbell, and so much more! Its a home that adapts to your lifestyle. And with D.R. Horton's simple buying process and ten-year limited warranty, there's no reason to wait. Images are representational only.
Stay informed with Livabl updates on new community details and available inventory.