





















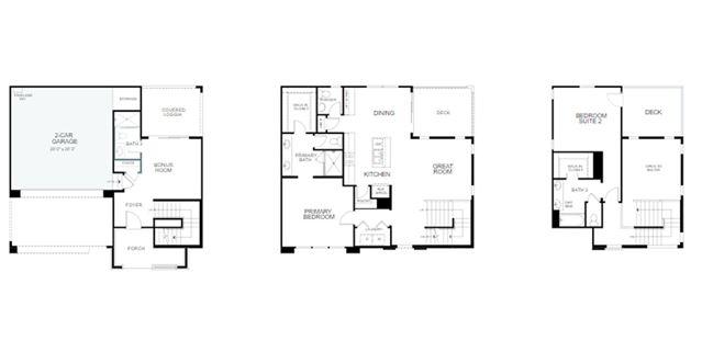
This plan is not available as a base build but we have several homes within our Move-in Ready Collection that may be a great fit! Step inside and be greeted by an open and versatile bonus room, this flexible space can be transformed into a home office, a vibrant entertainment area, a fitness studio, or anything your heart desires, including an additional bedroom. Ascend to the second floor and experience open and inviting main living areas including a modern kitchen with state-of-the-art appliances, a cozy dining area, and a chic living room, ideal for entertaining guests or spending quality time with loved ones. The primary suite is also located on the second floor offering a peaceful retreat for a restful night's sleep. Ascend once more to the third floor and arrive at the second bedroom with private bath. Now, let's talk about outdoor living. Savor bre...