


















































































Get additional information including price lists and floor plans.
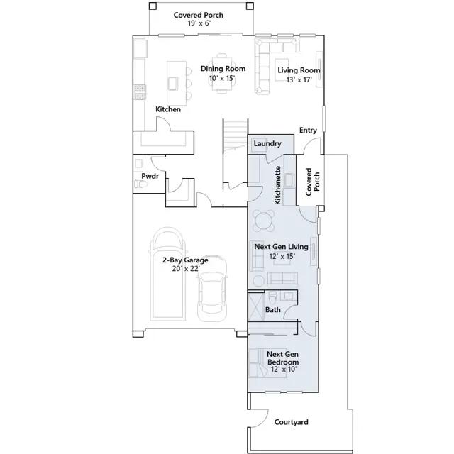
This new two-story Next Gen home features a private suite with its own entrance, living area, kitchenette, bedroom, bathroom and laundry. The main home is host to an inviting open-concept layout with a nearby covered porch offering seamless indoor-outdoor living. On the second floor, a versatile loft provides a convenient shared living area easily accessible from three bedrooms and a luxurious owners suite with a full bathroom, walk-in closet and private deck.
Stay informed with Livabl updates on new community details and available inventory.