







Get additional information including price lists and floor plans.
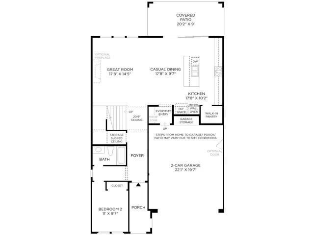
The sophisticated Porto features modern style and functionality. An inviting foyer reveals a stunning great room, a casual dining area, and a lovely covered patio beyond. Cooking is a joy in the well-equipped kitchen, featuring a large center island with breakfast bar, plentiful counter and cabinet space, and a walk-in pantry. The second level opens with comfortable loft space perfect for relaxation or play. An airy primary bedroom is complete with a walk-in closet and a relaxing primary bath with a dual-sink vanity, a luxe shower, and a private water closet. Secondary bedrooms feature a shared bath with a separate vanity area. Other highlights include a secluded secondary bedroom with access to a full hall bath on the first floor, an everyday entry, bedroom-level laundry, and extra storage throughout.
Stay informed with Livabl updates on new community details and available inventory.