



























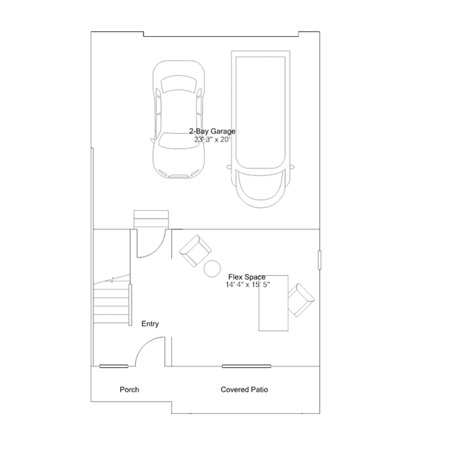
The first level of this three-story townhome is host to a generous flex space, offering access to a covered patio. Upstairs, the kitchen, dining room and living room are arranged among a convenient and contemporary open floorplan, with sliding glass doors that lead to a deck for effortless indoor-outdoor living and entertaining. All three bedrooms occupy the third level, including the luxe owners suite which includes a private deck, en-suite bathroom and walk-in closet.