
















Images coming soon
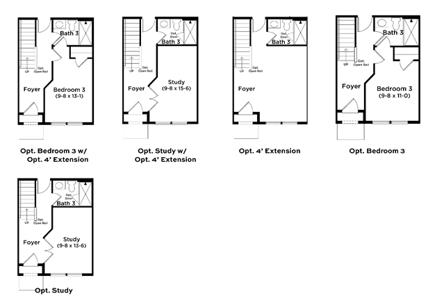
Welcome to the Aldridge II, a stunning and spacious townhome designed to achieve maximum comfort! Choose to enter the lower level of the home through the main entryway or attached 1-car garage, a secure and weather-protected option. You will be welcomed by a generously sized foyer which opens to flex space that can be used as a bonus family room or converted into an enclosed study or secondary bedroom complete with a full bathroom. Moving to the middle level, you'll be delighted to find a bright and airy open-concept kitchen with deck access and a sizeable island that seamlessly flows into the dining and family rooms. No details were spared in the design of the Aldridge II's kitchen, a dream come true for culinary enthusiasts! Enjoy granite countertops, stainless steel appliances, and an oversized island with countless opportunities to upgrade. For more ...