hero-image-0

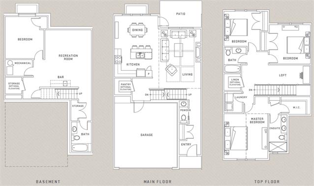
Edward Plan

McBride Station
Sold
Sold
4
4
From 2,558
unit-banner-imageunit-banner-imageunit-banner-image
Edward Plan details
Edward Plan is now sold.
Check out available nearby plans below.