hero-image-0

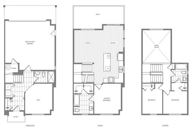
M Plan

YORK. BY MOSAIC.
Sold
Sold
3
3
1
From 1,630
unit-banner-imageunit-banner-imageunit-banner-image
M Plan details
M Plan is now sold.
Check out available nearby plans below.