FEATURED
G
Elwynn Green
Fleetwood, Surrey
A
Aston
Willoughby - Willowbrook, Langley Township
B1
A2
B
D
A1
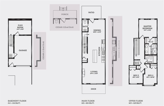
Townside Village - Townhomes
The final phase of the Milner Heights community in Langley is coming this fall
Sales of two- and three-bedroom townhomes will be starting this fall.