FEATURED
Juniper
Haven
Albion, Maple Ridge
Cedar
Magnolia
Rosemary
Brighton North
Willoughby - Willowbrook, Langley Township
Hardwick
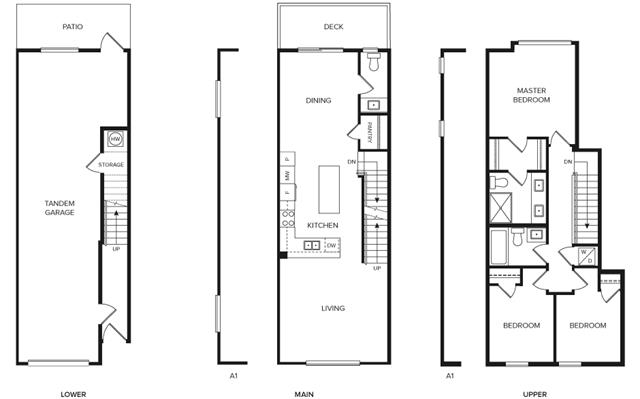
Plan C3
Nature's Walk - Single-Family Homes
Pitt Meadows City Centre, Pitt Meadows
Parkdale
Alderwood