























Get additional information including price lists and floor plans.
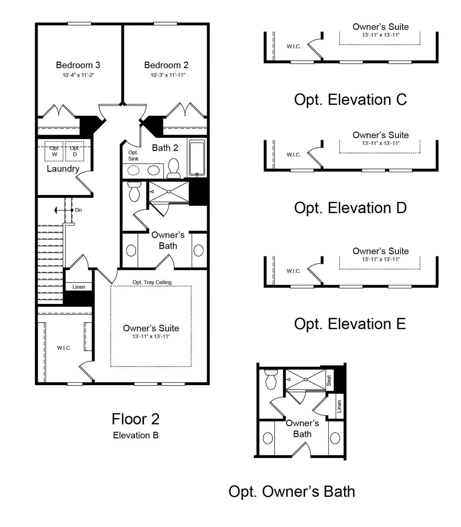
The two-story Magnolia attached home has a modern design with an open concept and an inviting foyer that flows into the gathering room, kitchen, and dining area. The second floor offers a generous size primary suite at the front of the home along with two secondary bedrooms, a secondary bath, and a spacious, centrally located laundry room. This home features 3 bedrooms and 2.5 baths. The primary suite is a stunning private oasis with separate vanities and a spacious walk-in-closet.
Stay informed with Livabl updates on new community details and available inventory.