hero-image-0
hero-image-1

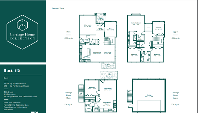
1321 CENTAURI DR

Carriage Home Collection
Sold
Sold
4
3
1
2,119
1321 CENTAURI DR details
1321 CENTAURI DR is now sold.
Check out available nearby homes below.