











































Get additional information including price lists and floor plans.
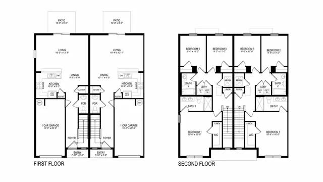
This two-story, all-concrete block constructed connected town home features 3 bedrooms, 2.5 bathrooms and a one car garage. As you enter into the foyer you are greeted with the wide hallway guiding you to the main living area and kitchen, or up the stairs to the bedrooms. The open kitchen overlooks the living area, dining, and sliding glass doors out to the back lanai. Upstairs is the living quarters, bedroom 1 is in the front of the home, the second and third bedrooms are in the back of the home. The primary bedroom has the ensuite bathroom with double vanity sinks as well as a spacious walk-in closet. The townhome also comes with stainless steel kitchen appliances, a fully equipped laundry room, and a cutting-edge smart home system. Pictures, photographs, colors, features, and sizes are for illustration purposes only and will vary from the homes as built. Hom...
Stay informed with Livabl updates on new community details and available inventory.