

























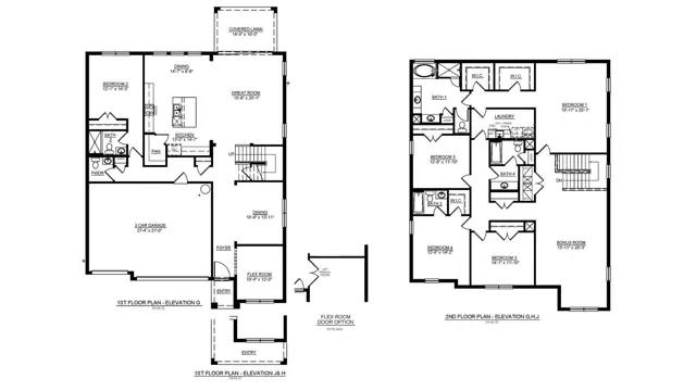
This two-story, concrete block-constructed home features a flex space and a separate dining room upon entry. A well-appointed kitchen with a walk-in pantry and dinette overlooks a spacious great room that leads to a covered lanai. The first floor is complete with a guest suite and a full bath. Bedroom 1 with ensuite bath provides dual walk-in closets and connects to a spacious laundry room for convenience. Three additional bedrooms, one with an ensuite bathroom, can be found off the grand bonus living room. Pictures, photographs, colors, features, and sizes are for illustration purposes only and will vary from the homes as built. Home and community information including pricing, included features, terms, availability, and amenities are subject to change and prior sale at any time without notice or obligation. CBC039052.
Stay informed with Livabl updates on new community details and available inventory.