




















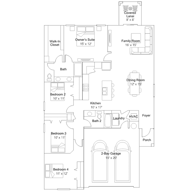
This convenient single-story plan opens to an inviting dining room with shared access to the kitchen and family room, ideal for seamless modern living. Tucked behind the kitchen, three secondary bedrooms enjoy their own wing of the home, while the expansive owners suite is ideally situated in the back corner, a peaceful retreat.
Stay informed with Livabl updates on new community details and available inventory.