




























Get additional information including price lists and floor plans.
Images coming soon
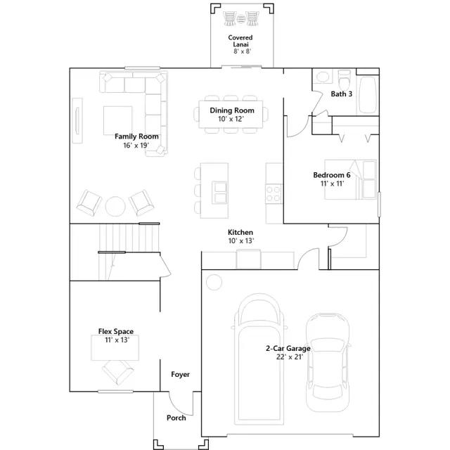
One of the largest plans in this collection, this two-story home has an abundance of space with six bedrooms to offer restful retreats for the whole family. Off the foyer is a versatile flex space, followed by a modern free-flowing design to add a sense of unity amid the open kitchen, dining room and family room. The second floor is host to the sprawling owners suite and a large loft for shared entertainment.
Stay informed with Livabl updates on new community details and available inventory.