









































































Get additional information including price lists and floor plans.
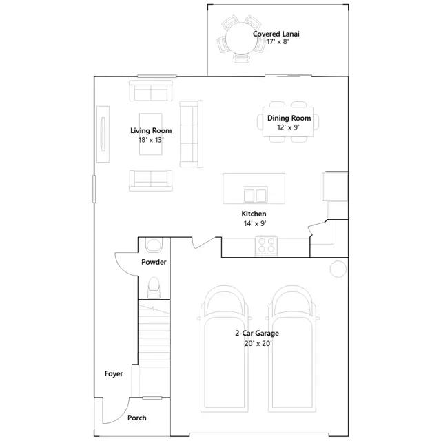
This spacious two-story home features a contemporary open floorplan among the kitchen, living room and dining room on the first floor, perfect for hosting guests. The second floor contains a versatile loft that can double as a media room, as well as all four bedrooms, including an expansive owners suite with a lavish private bathroom.
Stay informed with Livabl updates on new community details and available inventory.