















































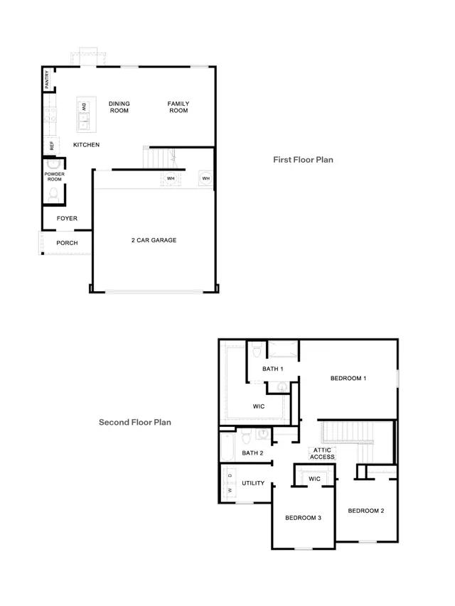
The Davis is one of our two-story floorplans available at Ladera in Luling, Texas. This home offers 3 bedrooms, 2.5 bathrooms and a 2-car garage across 1,470 square feet of modern living space. Our homes in Ladera feature a board and batten exterior, and the Davis is available in 2 exterior options. Step inside the home from the front porch and pass through the foyer to the kitchen, dining and family room. This open concept living space will become the central hub of your home, a place where many memories will be made. The kitchen features an island with a stainless-steel sink, quartz countertops, 42 upper picture frame cabinets, a pantry closet, and stainless-steel appliances. A powder room is also located on the first floor. Moving upstairs, youll find all 3 bedrooms, 2 full bathrooms and the utility room. The large primary bedroom includes an attached bath...
Stay informed with Livabl updates on new community details and available inventory.