New Homes for Sale
Articles
Professionals
Log in
Sign up
Photos 27
Videos 0
Map
Interactive floor plan 0
Virtual 1
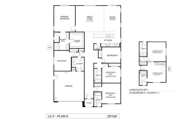
Plan 5
By
Pacific Communities
|
Pacific Lily
Community
Available homes
Get updates
Save
Request info
Request info
Community
Available homes
Request info
Get updates
Save
Request info
Pacific Lily
Get updates
Request info
Sold
Virtual Tours
Sold
1
5
3
From 2,510
Plan 5 details
Address:
Lancaster, CA 93535
Plan type:
Detached Two+ Story
Beds:
5
Full baths:
3
SqFt:
From 2,510
Ownership:
Fee simple
Interior size:
From 2,510 SqFt
Lot pricing included:
Yes
Basement:
No
Garage:
2
Garage entry:
Front
Plan 5 is now sold.