



























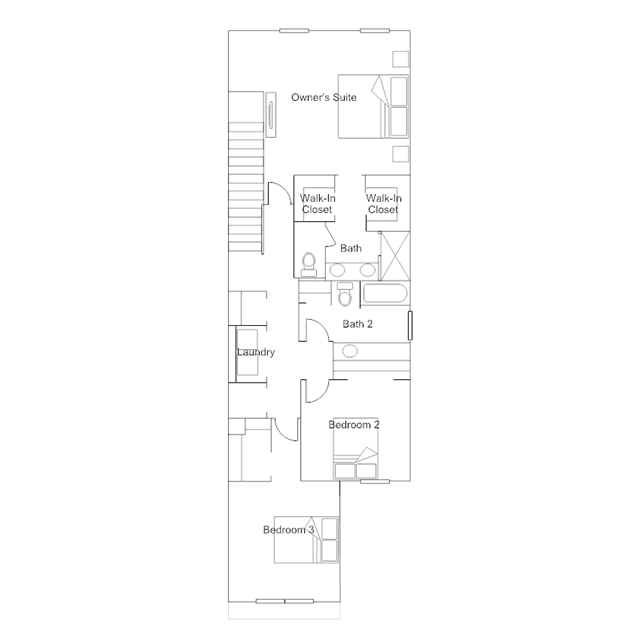
The end units of each building, these new two-story townhomes have a comfortable, modern design, with a first-floor kitchen for inspired cooking, a dining room for memorable meals, a breakfast nook for casual bites and a family room for shared moments. The lanai enhances outdoor living. The bedrooms, including the lavish owners suite, are upstairs.