










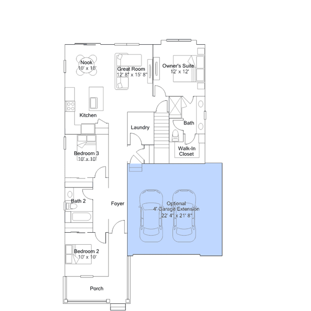
The only ranch-style design in the collection, this plan provides an open layout that highlights a contemporary kitchen overlooking the nook and Great Room. The luxurious owners suite with a spa-inspired bathroom is privately situated at the back of the home, while two more bedrooms can be found off the foyer.