






























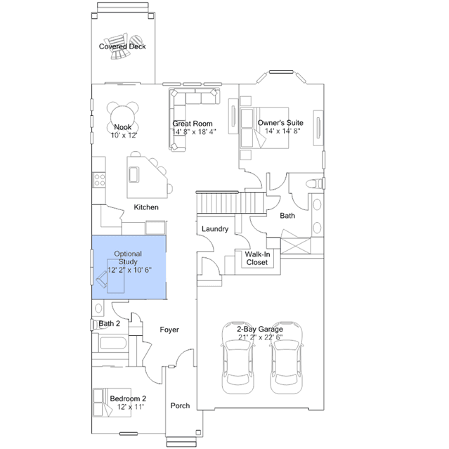
This single-story home provides plenty of entertaining space with an expansive open layout among the gourmet kitchen, spacious Great Room, nook and covered deck. This plan also features three bedrooms, including the lavish owners suite with spa-like bathroom and walk-in closet.