






























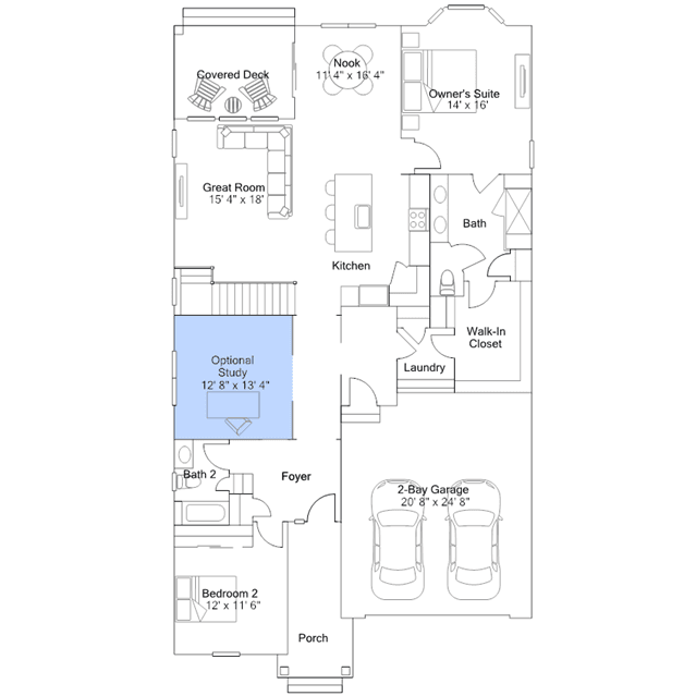
This single-story home features an open living area that brings together the kitchen, Great Room and nook plus extends outdoors to a covered deck. This plan also provides three bedrooms, including the spacious owners suite with spa-like bathroom and walk-in closet.