

























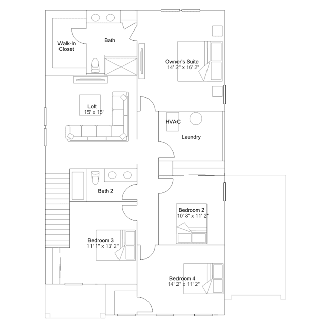
This new two-story home showcases an appealing contemporary design. At the heart of the first floor is the Great Room, which connects in an open-plan layout with the dining room and modern kitchen. A secluded office provides privacy, and a mudroom offers convenience. The second floor hosts a centrally situated loft and four bedrooms including a spacious owners suite with a luxe bathroom and large walk-in closet.
Stay informed with Livabl updates on new community details and available inventory.