




























































Get additional information including price lists and floor plans.
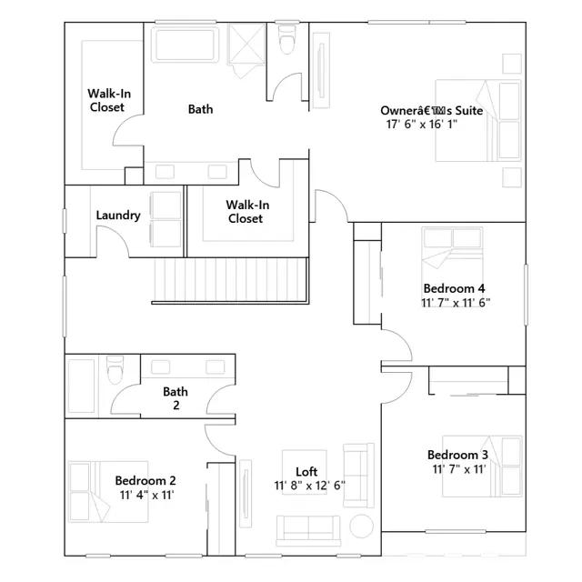
This new two-story home is ready for modern lifestyles. A bedroom is located off the entry, leading to an open-concept floorplan that blends the kitchen, living and dining areas. On the second floor, the luxe owners suite sweeps across the back of the home, complete with a spa-inspired bathroom, near two additional bedrooms and a versatile loft.
Stay informed with Livabl updates on new community details and available inventory.