hero-image-0
hero-image-1

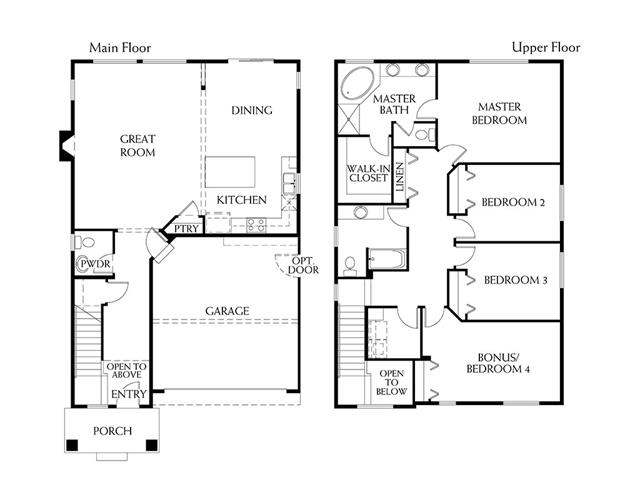
Somerset 3740 Plan

By

D.R. Horton

   |   

Stonebriar

Stonebriar
Sold
Sold
4
2
1
From 2,192
unit-banner-imageunit-banner-imageunit-banner-image
Somerset 3740 Plan details
Somerset 3740 Plan is now sold.
Check out available nearby plans below.