hero-image-0
hero-image-1

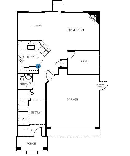
Langley Plan

By

D.R. Horton

   |   

Stonebriar

Stonebriar
Sold
Sold
4
2
1
From 2,141
unit-banner-imageunit-banner-imageunit-banner-image
Langley Plan details
Langley Plan is now sold.
Check out available nearby plans below.