

















































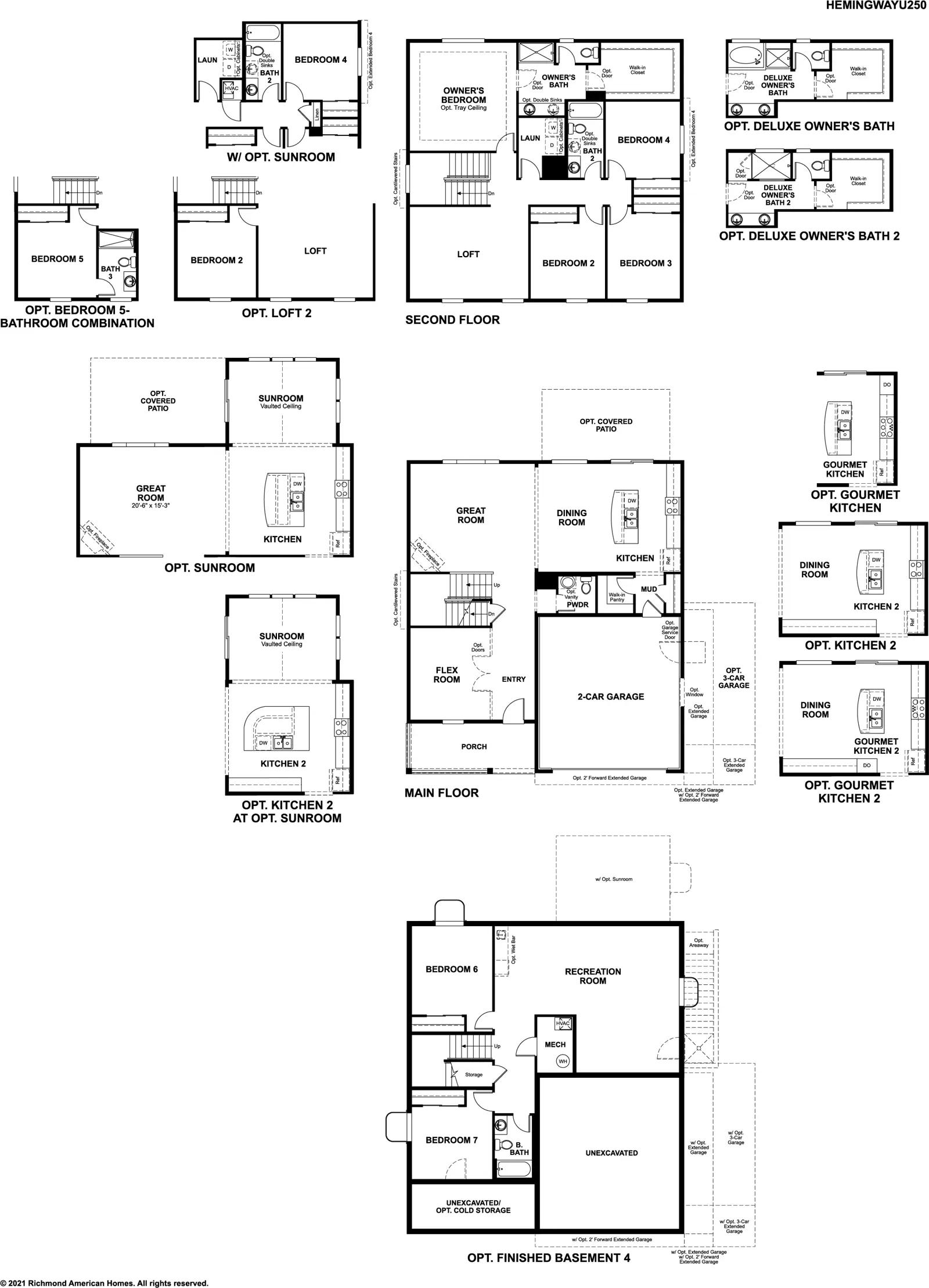
This Hemingway plan features an entryway with adjacent flex space that can be personalized to suit your needs. At the back of the home, you'll find a great room with an optional corner fireplace and a large kitchen with a center island and a walk-in pantry. An upstairs laundry room, loft and four bedrooms, including the spacious owner's suite, complete this elegant home. Options for this home include gourmet kitchen finishes, alternate kitchen layouts, sunroom, deluxe primary bathroom finishes, and a finished basement with two additional bedrooms, a full bathroom, a rec room, and additional storage.
Stay informed with Livabl updates on new community details and available inventory.