hero-image-0
hero-image-1

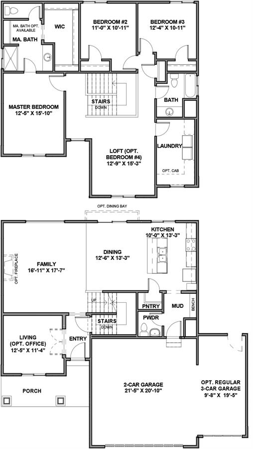
8531 N Iron Horse Drive

Pastures at Saddleback
Sold
Sold
3
2
3,460
8531 N Iron Horse Drive details
unit-banner-image
unit-banner-image
unit-banner-image
8531 N Iron Horse Drive is now sold.
Check out available nearby homes below.